MALNATE localita’ GURONE
In un angolo di tranquillità immerso nel verde, questo rustico è la soluzione ideale!
Situato in una posizione strategica, a pochi minuti dal centro di Malnate , il rustico offre un buon potenziale.
Caratteristiche principali:
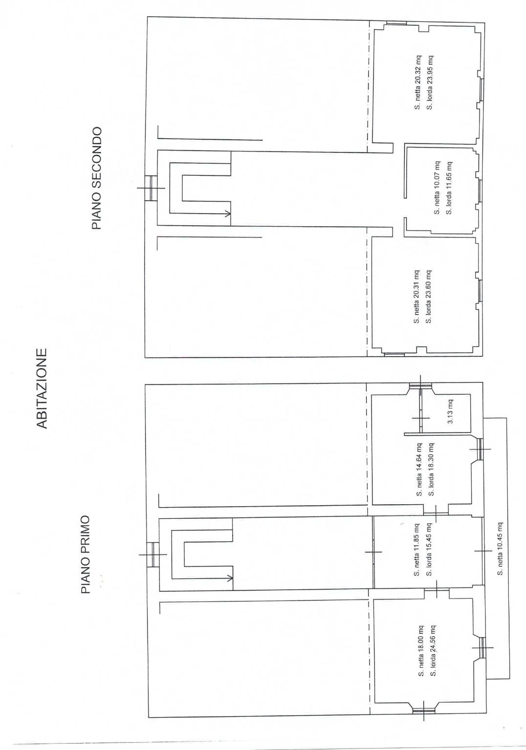
Superficie totale: circa 164 mq. disposti su piu’ livelli di circa 60/70 mq. a piano con tutto il sottotetto.
il tetto e’ stato rifatto recentemente.
Terreno annesso DI PROPRIETA’: mq.215
Struttura aggiuntiva , rustico indipendente, che puo’ essere ristrutturata e valorizzata , perfetta per creare un area indipendente o uno spazio aggiuntivo.
Servizi:
Acqua e luce già presenti – Accesso tramite strada sterrata in buone condizioni.
Ideale per: Investimento
Amanti della natura e del silenzio
Contattaci per maggiori informazioni o per fissare una visita! 0332-861871