VENEGONO SUPERIORE – VILLETTA A SCHIERA DI TESTA CON TERRENO

  • €380.000
In primo piano Vendita NUOVO!
Via dei Mughetti, 21040 Venegono Superiore VA, Italia
  • Villetta a schiera
  • Tipologia
  • 300
  • 4
  • Camere da letto
  • 2
  • Bagni
  • V611
  • Riferimento immobile
In primo piano Vendita NUOVO!

VENEGONO SUPERIORE – VILLETTA A SCHIERA DI TESTA CON TERRENO

Via dei Mughetti, 21040 Venegono Superiore VA, Italia
  • €380.000

Panoramica

Riferimento immobile: V611
  • Villetta a schiera
  • Tipologia
  • 300
  • 4
  • Camere da letto
  • 2
  • Bagni
  • V611
  • Riferimento immobile

Descrizione

CERCHI UNA VILLA A SCHIERA DI TESTA E IN ZONA TRANQUILLA? IN CLASSE A+++3 ???

ABBIAMO LA SOLUZIONE CHE FA PER TE!

In zona eslcusiva, tra COMO E VARESE proponiamo soleggiata villa a schiera DI TESTA disposta su TRE piani abitativi, terreno di 1200 mq e depandance di proprietà!
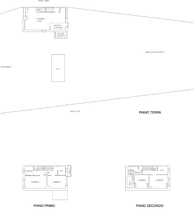
La soluzione è stata ristrutturata nel 2023, con infissi nuovi, impianto fotovoltaico, termocamino, caldia a pompa di calore, oltre alle rifiniture interne sia nei bagni che nei locali abitativi, l’immobile e quindi così composto: piano terra: soggiorno con cucina a vista e ripostiglio con uscita sul giardino; piano primo troviamo bagno con box doccia, due camere matrimoniali e ripostilgio con balcone; al piano secondo troviamo altre due camere da letto di cui una con balcone e secondo bagno/lavanderia con box doccia e ripostiglio!!!!

COMPLETA LA SOLUZIONE DEPANDANCE ESTERNA ADIBITA A LOCALE RIPOSTIGLIO E AMPIO TERRENO DI CIRCA 1200 MQ TUTTO RECINTATO PIU’ PARTE DI BOSCO DI PROPRIETA’!!!!! CHIAMA SUBITO!

PERCHE’ ACQUISTARE QUESTA SOLUZIONE: Ottima soluzione per famiglia numerosa, comodità per i servizi e ottima esposizione!

Cosa aspetti? chiamaci e fissa il tuo appuntamento! sei interessato ma devi vendere il tuo immobile. Sai il suo vero potenziale? conosci la differenza tra il prezzo e il valore reale della tua casa? contattaci! ti offriamo una co-creazione del tuo progetto adeguata alle tue esigenze, ascoltando i tuoi desideri. Ricordati quando ci chiami di comunicarci il riferimento annuncio, grazie.

Questa descrizione ha valore puramente indicativo e non costituisce elemento contrattuale.

Dettagli

Aggiornato su Marzo 4, 2026 a 11:47 am
  • Riferimento immobile: V611
  • Prezzo: €380.000
  • Superficie: 300 m²
  • Giardino: 1200 m²
  • Camere da letto: 4
  • Locali: 5
  • Bagni: 2
  • Anno di costruzione: 1980
  • Tipologia: Villetta a schiera
  • Contratto: Vendita

Dettagli aggiuntivi

  • Riscaldamento: Autonomo a pavimento

Piani

image

Descrizione:
Planimetria Villa a schiera

Classe Energetica

  • Classe energetica: A
  • Prestazione energetica: 57.91 kWh/m² anno
  • A+
  • 57.91 kWh/m² anno | Classe energetica A
    A
  • B
  • C
  • D
  • E
  • F
  • G
  • H
  • Indirizzo Via dei Mughetti
  • Provincia Provincia di Varese
  • Regione Regione Lombardia
  • CAP 21040
  • Comune Venegono Superiore
  • Stato Italia

Compare listings

Confrontare
B&C Case Malnate
  • B&C Case Malnate